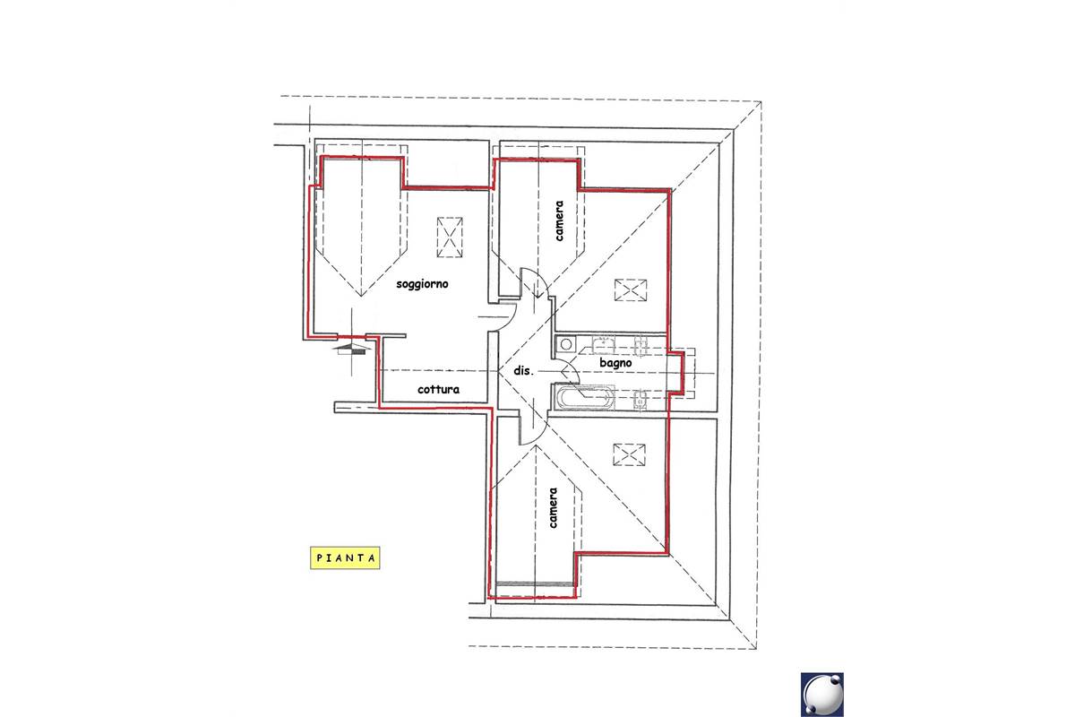
Descrizione

Zona Stazione FNM, in palazzina di recente ristrutturazione, proponiamo ultime soluzioni abitative di 80/85mq nelle quale si possono realizzare appartamenti di tre locali, questo da la possibilità ai futuri acquirenti di creare tutto a misura delle proprie necessità e personalizzarli a piacimento. Maggiori informazioni in ufficio. (Valore di progetto C.E. 'D' - IPE 100.68 kWh/m2a).

Caratteristiche e accessori

  • Prezzo
    99.000 EUR
  • Classe
    D (100,68 [kWh/m²a])
  • Locali
    3
  • Camere
    2
  • Bagni
    1
  • Metri quadri
    83
  • Anno di Ristrutturazione
    2016
  • Stato Immobile
    In Costruzione
  • Grado
    Medio
  • Piano
    Primo
  • Totale Piani
    Quattro
  • Lati Liberi
    2
  • Arredi
    Non Arredato
  • Riscaldamento
    Da Creare
  • Fonte Energetica
    Metano
  • Accesso Disabili
    Nessuna Barriera
  • Accesso interno disabili
    Pieno accesso
Accessori: Ascensore, Cancello Elettrico, Porta Blindata

Richiedi informazioni

Autorizzo il trattamento dei miei dati personali in base sia all'art. 616 c.p. sia ai sensi del D.Lgs 196/03 e del GDPR n. 679/2016
Invia

Scrivici una mail

Invia

  • Indirizzo: piazza G. Matteotti n. 20-21
    22036 - Erba (Co)
  • Telefono: + 39 031.610918
  • Fax: + 39 031.3335692
  • Cellulare - WhatsApp - Telegram - Viber - Signal:
    + 39 333.9771674
  • P.IVA 02967370137
  • Orari Apertura al Pubblico:
    da lunedì a venerdì
    dalle 9:00 alle 12:30 (mattina)
    dalle 14:30 alle 20:00 (pomeriggio)
    sabato dalle 9:00 alle 12:30
    pomeriggio su appuntamento

  • Indirizzo: Viale Massenzio Masia, 20
    22100 - Como (Co)
  • Cellulare - WhatsApp - Telegram - Viber - Signal: + 39 333.6557500
  • P.IVA 02967370137
  • Orari Apertura al Pubblico:
    su appuntamento
Cookie preference